新闻动态

NEWS DYNAMIC

公司新闻 行业新闻 设计分享

26

May

2021

中国豪宅设计的又一颠覆:410㎡大平层,6.3m挑高+137

作者:中建建设      浏览:1096次

成功从来没有什么“偶然性”,而在于“必然性”。

 

       

去年年底,中国铁建地产在西安的城市封面作品——西派国樾亮相,一时间引发热议,海浪翻腾的裸眼3D屏给人以强大的视觉冲击力,更直观感受到该项目区别于其他产品的独特吸引力。         

       

当然,不只是硬科技,其产品力更是打动了“见多识广”的高净值人群,凭借“一身武艺”赢得了“票房”和“口碑”的双丰收。        

  

“最难的事,就是超越自己。”         

       

本以为这样的产品就足够出色,但今天和大家聊的这个豪宅——贵阳·铁建城更为惊艳。        

 

 

铁建城效果图    

 

在21世纪,能够称之为“封神”的产品,都有相同的属性,以产品主义为导向,通过“上帝视角”,预见未来需求导向,成就颠覆性的作品,铁建城便是如此。    

 

因为豪宅从建造到交付,基本要2-3年时间,而市场发展和客户需求又在不断升级,这就需要豪宅的建造者,要具备前瞻性洞察需求,创造性引领市场的能力,就像陆游的诗所云:“功夫在诗外”。    

 

中国铁建地产这一次果然没有意外,可预见的,将是对贵阳豪宅市场的一次划时代颠覆。    

 

                   
1

重新定义贵阳豪宅

空间感、功能性、仪式感兼具

 

 

近年来,豪宅市场可谓“大平层”当道,将各大生活功能区铺展到一个平面上,让空间延续感得以指数级扩张,舒适感瞬间增加,备受高级买家们的认可与钟爱。

 

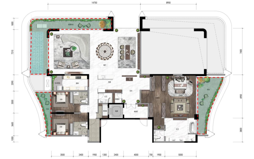
在众多大平层陷入“同面积段”之争时,贵阳·铁建城推出410㎡户型产品,引发了贵阳乃至全国市场的轰动。看到这个户型的第一眼,就有着明显不同的尺度感,居住体验感更是非常非常强。

 

约410㎡户型平面图

 

下面我们来具体看看它的亮点。

 

1、约130㎡+巨厅,更大面积带来更大的空间尺度感

 

如今的豪宅产品在“MAX”上做文章,其实也是与豪宅用户的需求正相关,并且这两年住宅设计越来越强调社交空间的打造,豪宅家庭在这方面有着同样的诉求。

 

实景图

 

该户型设计6.3m挑高+137㎡,面宽高达14.7m,置身其中的感受只能用“震撼”二字来形容。

 

所有的公共空间全部互通,无论处在哪个区域,都有着很好的尺度感。客厅、餐厅、书房和社交厨房(开放式西厨)组成了四重交流空间,真正意识到了“交流”属性的重要性。

 

实景图

 

总之, 作为一家人欢聚和招待亲友的地方,更大的空间赋予了生活更多的可能。

 

2、户户拥有私家泳池,大气奢华

 

豪宅有很多,但在阳台上设有私人泳池的却很少。

 

该项目阳台总长度约22.4m,进深约3m,配置面积超过约10㎡的游泳池,这样的尺度,是豪宅大平层才敢有的奢侈。泳池具有恒温加热、杀菌功能、水疗按摩、活水净化、灯光效果等等智能系统,在劳累闲暇之余,于此能够真正的享受生活、放松身心。

 

实景图

 

泳池一侧为整面落地玻璃窗,这块玻璃重1600斤,高约5.7m,安装难度很大,由12个工人完美配合将玻璃严丝合缝地安装到窗户上,采光视野俱佳。

 

3、所有空间均拥有露台,结合立面建筑体的美感更加突出

 

景观是大平层豪宅的主要考虑因素,好风景胜于一切。所以该户型阳台面积总共达到了约80㎡,阳台作为每个房间的延伸空间,实现了室内与城市、自然的无缝对接,保证了室内的采光度,并且可以享受一览无余的视野。

 

约410㎡户型平面图

 

流线型的设计让建筑立面更为简洁灵动,更具未来感,正是这种对于工艺的偏执,才让整个项目立面呈现出与众不同的视觉效果,这样的设计在贵阳未来十年,可能都是领先的。

 

4、约80㎡的总统套房,充分彰显全功能趋势

 

大平层豪宅对于空间感受的需求还体现在主卧空间和布局上。

 

实景图

 

主卧套房小家化,独立男女主人衣帽区、独立卫浴间(双台盆、阳光浴池),功能完备,再配以超大主卧阳台,整个面积达到约80㎡+,尺度感做得相当到位。如此宽阔的活动空间,放张躺椅在阳台,看看书发发呆,想想就很惬意。

 

 

实景图

 

除此之外,该户型还有充满仪式感的双入户玄关、双动线设计以及全套房设计等优点,这样的户型充分说明了金字塔尖的这群人,他们对于空间尺度的需求,是绝对存在的,只是过去没有可以匹配的产品,同样也保证了居住人群的绝对纯粹。

 

5、完品豪宅,高端品味与设计美学的融合

 

精装豪宅作为市场的主流,就不得不提到该产品的设计与选材了,真的是气度非凡、不吝成本。

 

设计师在室内精装的理念与应用上,将星级酒店式标准引入豪宅设计中,加入当地文化特色,让自然生态与人文艺术完美融合,给予房子质感的加持和升华,将豪宅的品质表现得恰到好处。

 

该样板间采用282种材料,其中118种是进口材料,以德国品牌居多,如耶鲁、威浪仕、史密斯、美诺、柏丽、博世、汉斯格雅、科勒等等,要知道,国内精装房的装修材料一般都在150种左右。

 

实景图

 

客厅这块6m的背景墙,人称“熊猫白”,纹理黑白交错,俨然巨幅水墨画。据说该石材由选材团队花费2个多月寻求多个省份,最终在福建水头找到它,从最初的22吨荒料通过3D切割以及人工打磨成为现今的“楼王”亮点,真可谓万里挑一;不仅如此,样板间内所运用的木饰面全部来自意大利的天然木品,通过手工拼接、烟熏处理才达到如今的效果和质感。

 

推荐阅读

内江市东兴区郭北养老服务中心建设项目方案设计

今日南方小年——三桥设计愿您岁岁平安

今日腊八!

新起点 新征程 | 三桥设计院祝大家新年快乐

三桥入住福建省传图系统啦

冬至来了,可以数着日子盼春天啦